※ 東南向き!! ※ 駐車5台可!! ※ リフォーム済み即入居可!!
住所能美市緑が丘9丁目17番
鉄道情報 / 北陸鉄道
【 バス停 】緑が丘9丁目バス停徒歩(約)3分
2,795万円
※下のeyecatchのコードは消さないでください

※上のeyecatchのコードは消さないでください














>詳細情報
□ 所在地
能美市緑が丘9丁目17番
□ 交通
□ 価格
緑が丘9丁目バス停徒歩(約)3分
□ 間取り
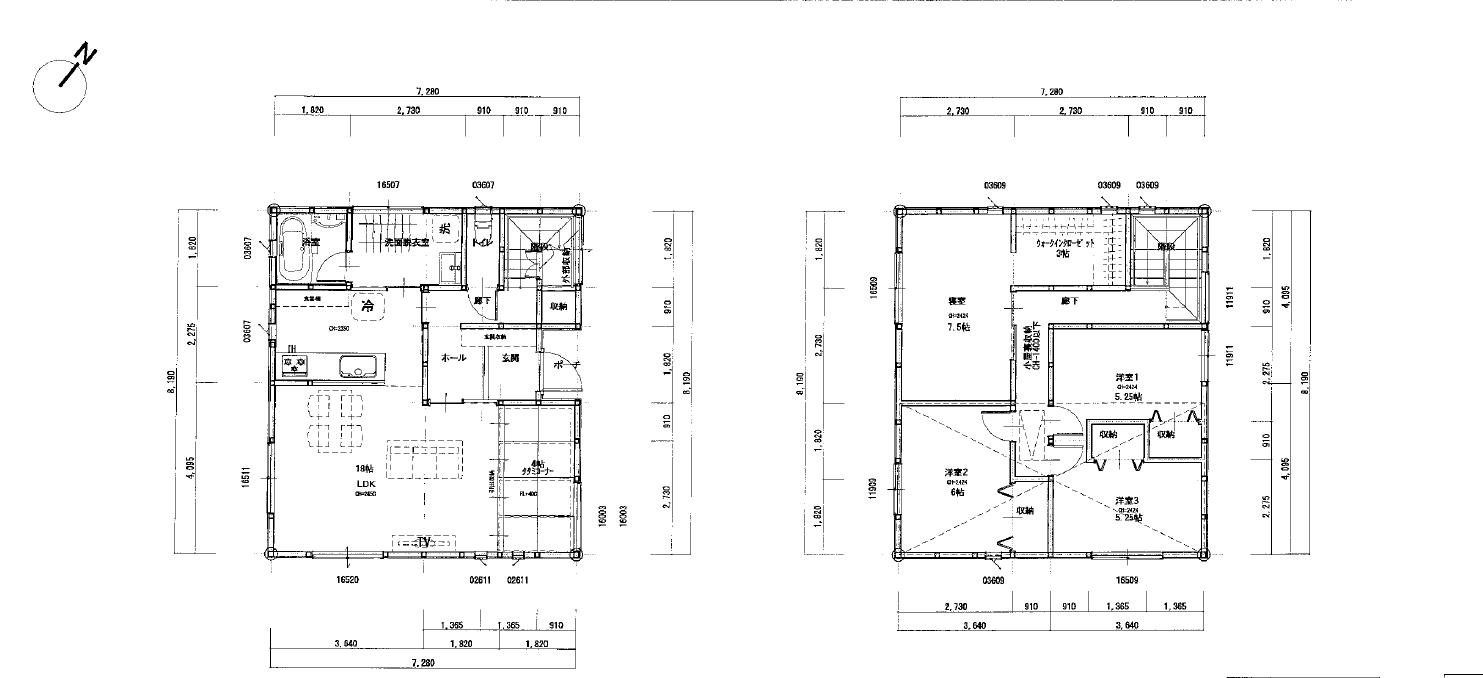
2階 寝室7.5 洋6 洋5.25 洋5.25 1階 和4(畳コーナー) 居間18 風呂 水洗 駐車5台可
□ 負担金
無
□ 延べ床面積
117.58㎡ (35.56坪)
□ 土地面積
260.68㎡ (78.85坪)
□ 非角地
□ 築年月
令和1年11月16日 築6年
□ 建物構造
木造合金メッキ鋼板葺2階建
□ 接道(間口)× (奥行)
前面道路(約)16M × 間口(約)14.8M
0□ 駐車場
5台可
□ 道路幅員
(約)16M
□ 権利種類
所有権
□ 地目
宅地
□ 建ペイ率
60%
□ 容積率
200%
□ 用途地域
第二種中高層
□ 都市計画区域
都市計画区域内
□ セットバック
無
□ 電気
北陸電力
□ ガス
□ 飲水
公営
□ 排水
下水道
□ 建物状況
空家
□ 入居状況
空家
□ 小学校
辰口中央小学校
□ 中学校
辰口中学校
□ 備考
※ リフォーム済み ※ 駐車5台可
□ 引渡時期
即
□ 取引形態
媒介

一戸建て
マンション
土地
オフィス












































